Contrefort

Ugljan, Croatia
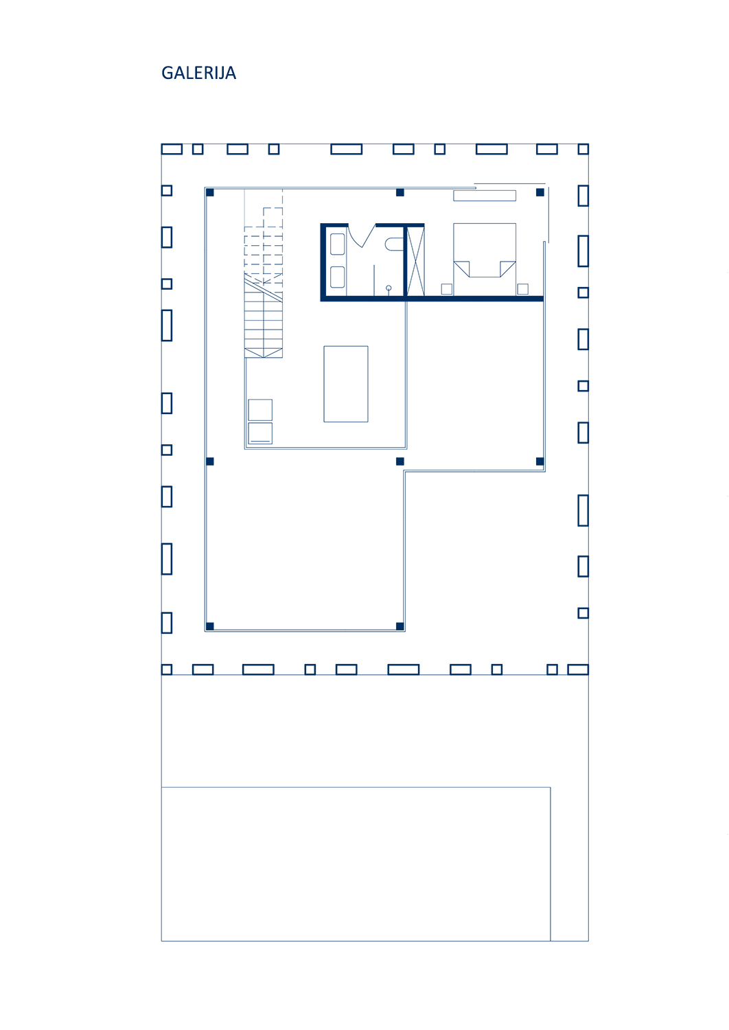
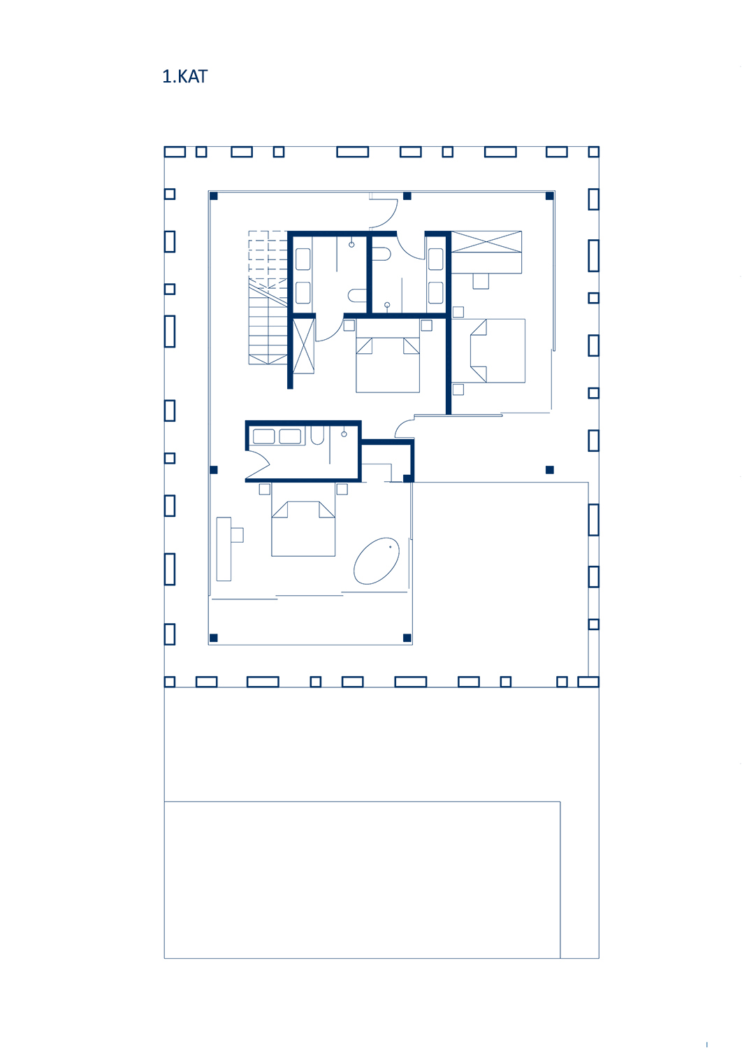
Single family house
counterfort or buttress (French contrefort, from counter- + fort: strong), an architectural structural element that reinforces a wall and neutralizes the lateral pressure of an arch, arch, dome or roof. It appears as a wall mass in the inner and outer part of the building. In the Romanesque it had the shape of an elongated pilaster, in the Gothic it was connected in the final part with supporting arches and was often decorated with carved decorative motifs and figures, and in the Renaissance and Baroque it was the exterior of architectural plastic.

Location, Town, State:
Ugljan, Croatia
Client:
private
Site area m2:
854.0
Gross floor area m2:
235.0
Project year:
2019